Карта письмо Главная
тел. +375(33)6666-998 (МТС) +375(29)668-48-08 (A1)


Новости На складе в Минске КРАНЫ ШАРОВЫЕ стальные. Действует система скидок!
На складе в Минске компенсаторы резиновые фланцевые (гибкая вставка).
Каталоги на собственное производство спрашивайте у менеджеров
Все новости»
Продукция  » Котельное оборудование  » Конденсатоотводчики

Конденсатоотводчики 45с13нж и 45ч12нж

Конденсатоотводчик термодинамический под приварку 45с13нж. РN 40.

Цена BYN (по запросу).

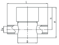
45с13нж Схема 45с13нж
DNKv,кг/чLHhDВес(кг)
151801007857,7481,29
202801007857,7481,3
254001007857,7481,36
3272015012793,7805,12
40110015012793,7805,09
50160015012793,7805,19

Характеристики:

Назначение для автоматического отвода конденсата из паропроводов и камер парового обогрева оборудования.
Материал корпусных деталей: сталь.
Присоединение: под приварку.
Рабочая среда: пар, конденсат.
Температура рабочей среды: +300 С.

Конденсатоотводчик термодинамический муфтовый 45ч12нж. РN 16.

Цена BYN (по запросу).

Схема 45ч12нж
DNLВес(кг)
15901,0
201001,5
251202,0
321403,5
401704,5
502007,0

Характеристики:

Назначение для автоматического отвода конденсата из паропроводов и камер парового обогрева оборудования.
Материал корпусных деталей: чугун.
Присоединение: муфтовое по ГОСТ 6527-68.
Рабочая среда: пароводяная смесь.
Температура рабочей среды: +200 С.

Назначение конденсатоотводчиков 45с13нж

Конденсатоотводчики термодинамические стальные 45с13нж с патрубками под приварку прежде всего предназначены для выпуска из систем водоснабжения конденсата, воздуха и других газов. Также эти уникальные устройства задерживают пар до тех пор, пока он полностью не сконденсируется.

Звоните нам, мы поможем с выбором.

ЗАО "Международный маркетинговый центр "Трубопроводная арматура и оборудование”

тел./факс: тел. +375(33)6666-998 (МТС) +375(29)668-48-08 (A1) эл.почта zaotpa@mail.ru