Карта письмо Главная
тел. +375(33)6666-998 (МТС) +375(29)668-48-08 (A1)
Продукция Задвижки  »
Затворы
Электроприводы  »
Краны шаровые  »
Клапаны (вентиля)  »
Котельное оборудование  »
Фильтры
Детали трубопроводов
Фланцы
Полимерные трубопроводы  »
Фитинги
Уплотнительные материалы
Метизы
Производство Задвижки
Задвижки ножевые
Задвижки щитовые
Затворы
Клапана
Фильтр
Грязевик вертикальный / горизонтальный
Сальниковый ввод
Проставка монтажная
Компенсатор монтажный / резиновый
Колонка управления с удлинительным штоком
Плавающие фланцы
Краны шаровые
Стенд для испытаний ТПА


Новости На складе в Минске КРАНЫ ШАРОВЫЕ стальные. Действует система скидок!
На складе в Минске компенсаторы резиновые фланцевые (гибкая вставка).
Каталоги на собственное производство спрашивайте у менеджеров
Все новости»
Продукция  » Краны шаровые  »  Стальные  » ТМ "МАРШАЛ"
ООО "ОЛБРИЗСЕРВИС", г. Киев   ЗАО "ХИМПРИБОР-1", г. Тула  
ТМ "МАРШАЛ", г. Луганск  

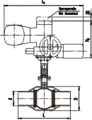
Кран шаровый запорный цельносварной. 11с67пЦ. PN 16, 25, 40.
11с67пЦ 11с67пЦ
DNPNтип присоед-яLHBH1d
1516фл1089121613914
25фл1309122713914
16-40пр23091278112-
2016фл1179422114714
25фл1509423814714
16-40пр23094278119-
2516фл12710022615814
25фл16010024315814
16-40пр230100278130-
3216фл14011724418518
25фл18011726418518
16-40пр260117305154-
4016фл16514036421318
25фл20014038221318
16-40пр260140412182-
5016фл18014937022918
25фл25014940522918
16-40пр300149433200-
6516фл20016738625718
25фл27016742125718
16-40пр360167471230-
8016фл21018248628018
25фл26018252128018
16-40пр370182567252-
10016фл23018171728818
25фл30018175229622
16-40пр390181798271-
12516фл25519073031318
25фл32519076532526
16-40пр400190803300-

Характеристики:

Материал:
Корпусные детали - сталь 20;
Шар запорный- сталь нержавеющая 12Х18Н10Т;
Шпиндель - сталь 20Х13;
Кольцо уплотнительное - фторопласт-4.
Способ управления: рукоятка, редуктор.
Присоединение: фланецевое по ГОСТ 12815-80, под приварку.
Рабочая температура: -30/+180 С
Рабочая среда:вода (холодная, горячая), природный газ, нефтепродукты, сжиженный газ и пр.
Класс герметичности:А по ГОСТ 9544-93.

Кран шаровый запорный цельносварной для подземной установки 11с67пЦП. PN 16, 25, 40.
11с67пЦП
DNL, ммВH1Н2L1Dd
50300411287+H27562810260
65360411300+H27562812776
80370411306+H27562814089
100390411326+H275628180114
125400411340+H275628219140
11с67пЦП

Характеристики:

Материал:
Корпусные детали - сталь 20;
Шар запорный- сталь нержавеющая 12Х18Н10Т;
Шпиндель - сталь 20Х13;
Кольцо уплотнительное - фторопласт-4.
Высота удлинителя позаказу: Н=800-2500 мм.
Способ управления: рукоятка, редуктор.
Присоединение: под приварку.
Рабочая температура: -30/+180 С
Рабочая среда:вода (холодная, горячая), природный газ, нефтепродукты, сжиженный газ и пр.
Класс герметичности:А по ГОСТ 9544-93.

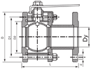
Кран шаровый запорный фланцевый 11с67п. PN 16.
11с67п. PN 16. 11с67п. PN 16.
DyL, ммDD1D2dМ, кг
10102906042142,43
15108956547142,43
201171057558143,34
251271158568144,45
3214013510078186,39
4016514511088187,5
501801601251021810
65/502001801451221812
652001801451221814
802101951601331815
100/802302151801581819
1002302251801581823
125/1002552452101841830
1252552452101841834,5
150/1002802802402122237
1502802802402122247
200/1503303352952682252
2003303352952682277
250/2004504053553202693
25045040535532026142
300/25050046041037026162
30050046041037026310
350/30068652047043026330
40076258052548230800

Характеристики:

Материал:
Рукоятка, фланцы, корпус, патрубок, втулка - сталь 20;
Шар - сталь нержавеющая 12Х18Н10Т;
Шпиндель - сталь нержавеющая 20Х13;
Кольцо уплотнительное - фторопласт-4.
Способ управления: рукоятка, редуктор.
Присоединение: фланецевое по ГОСТ 12815-80, под приварку.
Рабочая температура: -30/+180 С
Рабочая среда:вода (холодная, горячая), природный газ, нефтепродукты, сжиженный газ и пр.
Класс герметичности:А по ГОСТ 9544-93.

Кран шаровый запорный фланцевый 11с67п. PN 25.
11с67п. PN 25. 11с67п. PN 25.
DyL, ммDD1D2dМ, кг
10130906042142,1
15130956547142,2
201501057558142,9
251601158568144,2
3218013510078186,0
4020014511088188,3
502501601251021811,7
65/502701801451221813,8
652701801451221816,5
802801951601331817,5
100/803002151801581820
1003002251801581825
125/1003252702201842634
1253252702201842639,5
150/1003503002502122645
1503503002502122653
200/1504003603102782662
2004003603102782686
250/20045042537033530105
25045042537033530152
300/25050048543039030177
30050048543039030330
350/30076255049045033382
40083861055050536900

Характеристики:

Материал:
Рукоятка, фланцы, корпус, патрубок, втулка - сталь 20;
Шар - сталь нержавеющая 12Х18Н10Т;
Шпиндель - сталь нержавеющая 20Х13;
Кольцо уплотнительное - фторопласт-4.
Способ управления: рукоятка, редуктор.
Присоединение: фланецевое по ГОСТ 12815-80, под приварку.
Рабочая температура: -30/+180 С
Рабочая среда:вода (холодная, горячая), природный газ, нефтепродукты, сжиженный газ и пр.
Класс герметичности:А по ГОСТ 9544-93.

Кран шаровый фланцевый укороченный 11с67пСФК. PN 16.
11с67пСФК. PN 16 11с67пСФК. PN 16
DyL, ммВDНН1М, кг
106019090971441,6
156019095971441,8
20641921051001522,4
25641941151061633,1
32762101351201874,8
40743201451422145,3
50962291601652458,6
65/501002391801652458,8
6511524918016625613,5
8012526519516826514,0
100/8012931421516827318,4
10017968421518530022,5
125/10016968624519533024,0
12520068625019533029,7
150/10016868828060075027,4

Характеристики:

Материал:
Рукоятка, фланец, корпус - сталь Вст3сп2;
Втулка, шпильки - сталь 20;
Шар запорный- сталь нерж. 12Х18Н10Т;
Шпиндель - сталь нерж. 20Х13;
Кольцо уплотнительное - фторопласт-4.
Прокладки - резина ИРП-1287, биконит Способ управления: рукоятка, редуктор.
Присоединение: фланецевое по ГОСТ 12815-80.
Рабочая температура: -30/+180 С
Рабочая среда:вода (холодная, горячая), природный газ, нефтепродукты, сжиженный газ и пр.
Класс герметичности:А по ГОСТ 9544-93.

ООО "ОЛБРИЗСЕРВИС", г. Киев   ЗАО "ХИМПРИБОР-1", г. Тула  
ТМ "МАРШАЛ", г.Луганск  
ЗАО "Международный маркетинговый центр "Трубопроводная арматура и оборудование”"

тел./факс: тел. +375(33)6666-998 (МТС) +375(29)668-48-08 (A1) эл.почта zaotpa@mail.ru