Карта письмо
Главная
тел. +375(33)6666-998 (МТС) +375(29)668-48-08 (A1)
Продукция Задвижки  »
Затворы
Электроприводы  »
Краны шаровые  »
Клапаны (вентиля)  »
Котельное оборудование  »
Фильтры
Детали трубопроводов
Фланцы
Полимерные трубопроводы  »
Фитинги
Уплотнительные материалы
Метизы
Производство Задвижки
Задвижки ножевые
Задвижки щитовые
Затворы
Клапана
Фильтр
Грязевик вертикальный / горизонтальный

Сепаратор
Сальниковый ввод
Проставка монтажная
Компенсатор монтажный / резиновый
Колонка управления с удлинительным штоком
Плавающие фланцы
Краны шаровые
Стенд для испытаний ТПА


Новости На складе в Минске КРАНЫ ШАРОВЫЕ стальные. Действует система скидок!
На складе в Минске компенсаторы резиновые фланцевые (гибкая вставка).
Каталоги на собственное производство спрашивайте у менеджеров
Все новости»

Собственное производство  » Грязевик вертикальный фланцевый

ЗАО "Международный маркетинговый центр "Трубопроводная арматура и оборудование”

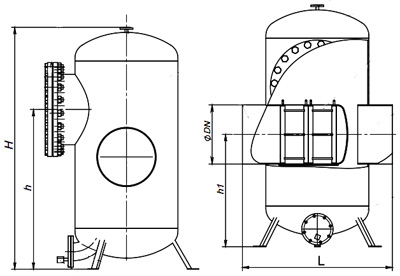
Грязевик вертикальный фланцевый. DN 50 - DN 250. PN 16

Грязевик вертикальный

Характеристики:

DN от 50 до 250
Корпус: Сталь 3кп.
Сетка: Сталь 20Х13.
Присоединение фланцевое по ГОСТ 12815-80
Рабочая температура: до +180
Применение:для очистки воды от примесей в системах водяного отопления.
Схема Грязевик вертикальный
DN L H D D1 D2
50260270160125102
65270280180145122
80280280195160133
100473447215180158
125473465245210184
150526563280240212
200626669335295268
250730785405355320

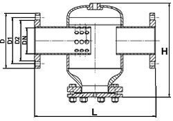
Грязевик вертикальный под приварку. DN 350 - DN 800. PN 16, 25

Грязевик вертикальный

Характеристики:

DN от 350 до 800
Корпус: Сталь 3кп.
Сетка: Сталь 20Х13.
Присоединение под приварку
Рабочая температура: до +180
Применение:для очистки воды от примесей в системах водяного отопления.
ОСОБЕННОСТИ КОНСТРУКЦИИ:в стандартном исполнении грязевик имеет плоское массивное днище с ребрами жесткости. Плоское днище заменили на эллиптическое, что позволяет экономить количество металла в 2 раза, увеличивает объем грязевика на 10%. данная конструкция обладает достаточной жестокостью и запасом прочности.
Схема Грязевик вертикальный
DNLHhh1
3501200196013051205
4001200201013551205
5001340211014551205
6001500227015351335
7001700246016301480
8001800256017301480

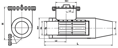
Грязевик горизонтальный под приварку. DN 150 - DN 400. PN 10,16,25

Грязевик горизонтальный Схема Грязевик горизонтальный

Характеристики:

DN от 150 до 400
Корпус: Сталь 3кп.
Сетка: Сталь 20Х13.
Присоединение под приварку
Рабочая температура: до +180
Применение:для очистки воды от примесей в системах водяного отопления.
Dy Py Dh Dh1 db L L2 L3 H Вес
15010/16/25159426150/150/1491300/1300/1400395/395/495250923/923/925232/265/339
20010/16/25219426207/207/2051240/1330/1340395/485/495250923/923/925241/273/351
25010/16/25273426261/261/2571300/1390/1400410/500/510280963/963/965253/284/365
30010/16/25325478313/313/3091555/1645/1660430/530/5403001040/1040/1042316/390/473
35010/16/25377530359/359/3591740/1750/1750565/585/5853201108/1108/1109377/480/613
40010/16/25426630408/408/4082060/2050/2080645/655/6754001246/1246/1218520/723/783

Исполнение для DN 600 - 1000. PN 10, 16, 25.

Схема Грязевик горизонтальный
DN Dh1 Dh2 D1 L L1 h1 h2 Вес
600614/614/610920273725/770/7702902/2982/2980550550380863/1117/1540
800802/802/7981220325950/950/9003688/3798/3780650675490/490/4851710/2126/2867
10001000/1000/99214204261160/1170/12104000/4090/4082750790570/570/5652447/3125/4288
ЗАО "Международный маркетинговый центр "Трубопроводная арматура и оборудование”

тел./факс: тел. +375(33)6666-998 (МТС) +375(29)668-48-08 (A1) эл.почта zaotpa@mail.ru