Карта письмо
Главная
тел. +375(33)6666-998 (МТС) +375(29)668-48-08 (A1)
Продукция Задвижки  »
Затворы
Электроприводы  »
Краны шаровые  »
Клапаны (вентиля)  »
Котельное оборудование  »
Фильтры
Детали трубопроводов
Фланцы
Полимерные трубопроводы  »
Фитинги
Уплотнительные материалы
Метизы
Производство Задвижки
Задвижки ножевые
Задвижки щитовые
Затворы
Клапана
Фильтр
Грязевик вертикальный / горизонтальный
Сепаратор
Сальниковый ввод
Проставка монтажная
Компенсатор монтажный / резиновый

Колонка управления с удлинительным штоком
Плавающие фланцы
Краны шаровые
Стенд для испытаний ТПА


Новости На складе в Минске КРАНЫ ШАРОВЫЕ стальные. Действует система скидок!
На складе в Минске компенсаторы резиновые фланцевые (гибкая вставка).
Каталоги на собственное производство спрашивайте у менеджеров
Все новости»

Собственное производство  » Компенсатор монтажный / Компенсатор резиновый

ЗАО "Международный маркетинговый центр "Трубопроводная арматура и оборудование”

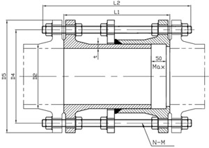
Компенсатор монтажный (Линза из нержавеющей стали). DN 350 - DN 1200. PN 10

Монтажный компенсатор Схема Монтажный компенсатор

Характеристики:

DN от 350 до 1200
фланец: Сталь 20 ГОСТ 12820.
Труба: Сталь нержавеющаяся.
Применение: позволяет производить монтаж арматуры в стесненных условиях с чугунными, стальными фасонными частями без плавающих фланцев.
DNDD1LdLd-nМасса кг, не более
350500460240+/- 2522-1666
400565515240+/- 2526-1683
500670620260+/- 5026-2095
600780725270+/- 5030-20120
700895840270+/- 5030-24190
8001010950300+/- 10033-24240
90011101050300+/- 10033-28284
100012201160300+/- 10033-28348
120014551380350+/- 10039-32530

Компенсатор монтажный (ЧУГУН). DN 80 - DN 2200. PN 16

Монтажный компенсатор чугун Схема Монтажный компенсатор чугун

Характеристики:

DN от 80 до 2200
Фланец (верхний, средний, внутренний): высокопрочный чугун.
Уплотнительное кольцо: СКЭПТ.
DND2L1L2D4D5n-MВес
80982003101602008-M1619
1001182003101802208-M1622
1251442003102102508-M1624
1501702003202402858-M2030
20022222034029534012-M2042
25027423037035540012-M2452
30032625041041045512-M2472
35037826041047052016-M2484
40042927043052558016-M27129
45048027043058564020-M27172
50053228044065071520-M30215
60063530048077084020-M33274
70073830048084091024-M33367
800842320520950102524-M36409
9009453205201050112528-M36472
100010483405601170117028-M39580
110011523405601270135532-M39668
120012553606001390148532-M45987
140014623806301590168536-M451186
150015654006651710182036-M521466
160016684007001820193040-M521710
180018754207302020213044-M522011
200020824407302230234548-M562633
220022884507502440255552-M563200

Компенсатор резиновый (гибкая вставка). DN 350 - DN 1000. PN 16

Компенсатор резиновый Схема компенсатора резинового

Характеристики:

DN от 350 до 1200
Фланец: Углеродистая сталь.
Корпус: резина.
Применение: используются для снижения шума, вибрации, гидравлических ударов, для компенсации продольных, поперечных смещений, тепловых удлинений трубопроводов.
DNLРастяжениеСжатиеЛинейноеУгловоеВес
32 95 6 9 9 15-
40 95 6 10 9 15-
50 105 7 10 10 154,30
65 115 7 13 11 155,60
80 135 8 15 12 156,00
100 150 10 19 13 156,40
125 165 12 19 14 159,70
150 180 12 20 22 1512,50
200 210 16 25 22 1517,40
250 230 16 25 22 1525,50
300 245 16 25 22 1531,70
350 255 16 25 22 15-
400 255 16 25 22 1555,25
450 255 16 25 22 15-
500 255 16 25 22 1597,00
600 260 16 25 22 15130,50
700 260 16 25 22 15-
800 260 16 25 22 15-
900 260 16 25 22 15-
1000 260 16 25 22 15-
ЗАО "Международный маркетинговый центр "Трубопроводная арматура и оборудование”

тел. +375(33)6666-998 (МТС) +375(29)668-48-08 (A1) эл.почта zaotpa@mail.ru