Карта письмо Главная
тел. +375(33)6666-998 (МТС) +375(29)668-48-08 (A1)
Продукция Задвижки  »
Затворы
Электроприводы  »
Краны шаровые  »
Клапаны (вентиля)  »
Котельное оборудование  »
Фильтры
Детали трубопроводов
Фланцы
Полимерные трубопроводы  »
Фитинги
Уплотнительные материалы
Метизы
Производство Задвижки
Задвижки ножевые
Задвижки щитовые
Затворы
Клапана
Фильтр
Грязевик вертикальный / горизонтальный
Сальниковый ввод
Проставка монтажная
Компенсатор монтажный / резиновый
Колонка управления с удлинительным штоком
Плавающие фланцы
Краны шаровые
Стенд для испытаний ТПА


Новости На складе в Минске КРАНЫ ШАРОВЫЕ стальные. Действует система скидок!
На складе в Минске компенсаторы резиновые фланцевые (гибкая вставка).
Каталоги на собственное производство спрашивайте у менеджеров
Все новости»
Продукция  » Котельное оборудование  » Регуляторы
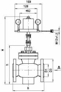
Регулятор давления и расхода прямого действия РД и РР. PN 16. ОАО"Теплоконтроль"
РД и РР Схема РД и РР
DNKv,м3/чHLBВес(кг)
256,364516031023,5
321065518031026,0
4016,069020031028,5
5025,072023031034,5
8060,080031031056,0
10080,085035031058,0

Характеристики:

Диапазоны настройки регулируемого давления: 0,04-0,16; 0,1-0,4; 0,16-0,63 МПа.
Py 1,6 МПа.
Корпус: серый чугун(СЧ-20) - основное исполнение. Сталь 20Л и коррозионостойкая сталь 12Х18Н10Т
Присоединение: фланцевое по ГОСТ 12815-80.
Варианты исполнения РД и РР: НО - регулирование давления "после себя", НЗ - "до себя" .
Рабочая среда: жидкие и парообразные среды.
Температура рабочей среды: от 0 до +180 С.

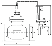
Регулятор давления сильфонный РДС. PN 16. ОАО"Теплоконтроль"
РДС Схема РДС
DNKv,м3/чBHhВес(кг)
152,51303901606,5
204,01503901607,7
256,31604051758,5
321018044820811,0
401620044820814,0
5025,023050426420,0
654029051127126,0
806331052128137,0
10010035055331352,0
12516040066042075,0
15025048074250292,0

Характеристики:

Диапазоны настройки регулируемого давления: 0,025-0,63; 0,4-1,0 МПа.
Py 1,6 МПа.
Материал: корпус СЧ-15, клапан, шток, термобаллон термосистемы 12Х18Н10Т, управляющий сильфон 36НХТЮ
Присоединение: фланцевое по ГОСТ 12815-80.
Варианты исполнения РДС: НО - регулирование давления "после себя", НЗ - "до себя" .
Рабочая среда: жидкие и газообразные среды.
Температура рабочей среды: от 0 до +225 С.

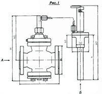
Регулятор температуры РТ-ДО(ДЗ). PN 10; 6,3. ОАО"Теплоконтроль"
РТ-ДО(ДЗ) Схема РТ-ДО(ДЗ)
DNKv,м3/чHLВес(кг)
152,52651307,0
256,3285/2951609,5
4016,0325/33520014,5
5025,0430/44023022,0
8060,0500/51031040,0

Характеристики:

Диапазоны настройки регулируемой температуры t С: 0-40, 20-60, 40-80, 60-100, 80-120, 100-140, 120-160, 140-180.
Py 1,0 МПа для DN 15-50
Py 0,63 МПа для DN 80
Материал: корпус СЧ, седло 40Х13, клапан 20Х13, шток и термобаллон термосистемы 12Х18Н10Т.
Присоединение: фланцевое по ГОСТ 12815-80.
Варианты исполнения РТ: РТ-ДО - с двухходовым нормально открытым регулирующим органом; РТ-ДЗ - нормально закрытым .
Рабочая среда: жидкие и газо- и парообразные среды.
Температура рабочей среды: от -15 до +225 С.

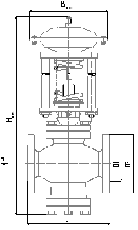
Регулятор температуры сильфонный РТС-ДО(ДЗ). PN 10; 16. ОАО"Теплоконтроль"
РТС-ДО(ДЗ) Схема РТС-ДО(ДЗ)
DNKv,м3/чBHВес(кг)
152,51302225,5
204,01502226,6
256,31602377,5
3210,018027010,0
4016,020027012,0
5025,023032314,0
6540,029033125
8063,031033633,0
10010035037541,5
12516040048270,0
15025048049478,0
Пределы настройки
0-100 С (100-200 С):
L=242(232); L1=81(71); L2=59(49).

Характеристики:

Диапазоны настройки регулируемой температуры t С: 100, 100-200.
Py 1,6 МПа для DN 15-50
Py 1,0 МПа для DN 65-150
Материал: корпус СЧ-15, клапан, шток и термобаллон термосистемы 12Х18Н10Т управляющий сильфон 36НХТЮ.
Присоединение: фланцевое по ГОСТ 12815-80.
Варианты исполнения РТ: РТС-ДО - с двухходовым сильфонным нормально открытым регулирующим органом; РТС-ДЗ - закрытым .
Рабочая среда: жидкие и газо- и парообразные среды.
Температура рабочей среды: от 0 до +225 С.

ЗАО "Международный маркетинговый центр "Трубопроводная арматура и оборудование”

тел./факс: тел. +375(33)6666-998 (МТС) +375(29)668-48-08 (A1) эл.почта zaotpa@mail.ru